3700 Wood Valley Road Norman, OK 73071

Other MLS #: 1068508 Courtesy Of Dillard Cies Real Estate

Property InformationDescription

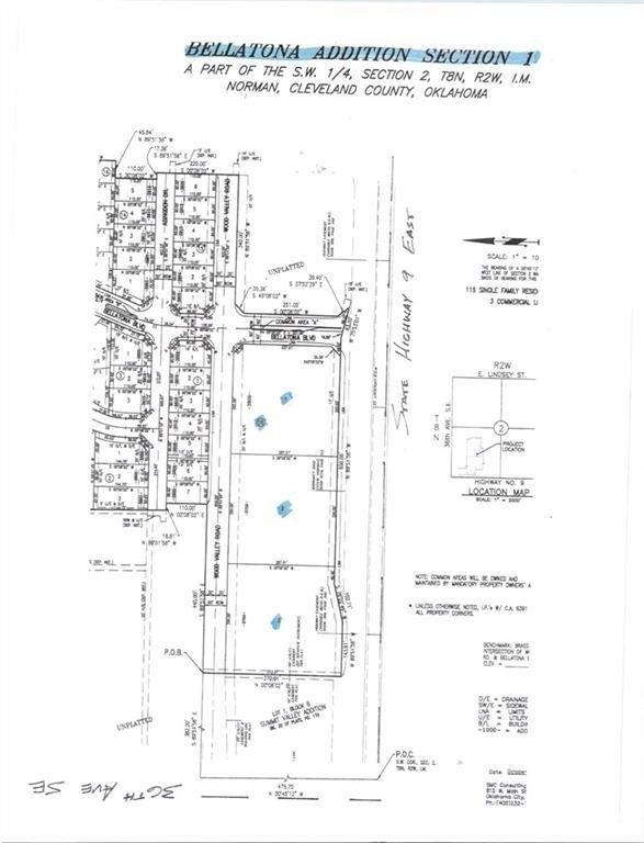
Zoning is C-1, commercial and is final platted and approved by the City of Norman. City water and sewer and other public utilities are on site. This lot is building permit ready for buyer. Great location along Highway 9 just east of the Postal Training Center with high traffic count and visibility along State Highway 9 and easy access. To the north, east and west there are large residential developments. Seller would cooperate with subdividing for potential buyers and accommodate existing site plans, specific acreage or layout requirements. Lot is on the corner of Wood Valley Road, 36th Ave SE and Highway 9 to the south.
MORTGAGE CALCULATOR

Features

  • Age: 1-5 Years Old
  • Architecture Style: Other
  • MLSID: 1068508

MAP & DIRECTIONS

Get Directions
3700 Wood Valley Road, Norman, OK 73071
View Directions
Copyright © 2025 MLSOK, Inc. All rights reserved. All information provided by the listing agent/broker is deemed reliable but is not guaranteed and should be independently verified. Information being provided is for consumers' personal, non-commercial use and may not be used for any purpose other than to identify prospective properties consumers may be interested in purchasing.